Natan Garfinkle

נתן גרפינקל

ناتان غرافينكل

لو منحتني نصيبي

אם תיתן לי חלקי

If you grant me my share

אורבני · בר-קיימא · חברתי · מבנה ציבור · מגורים · מרכז · קהילתי · רפואה · שימוש חוזר · שימושים מעורבים · תל אביב-יפו · תעסוקה · תרבות
מנחה: דני לזר
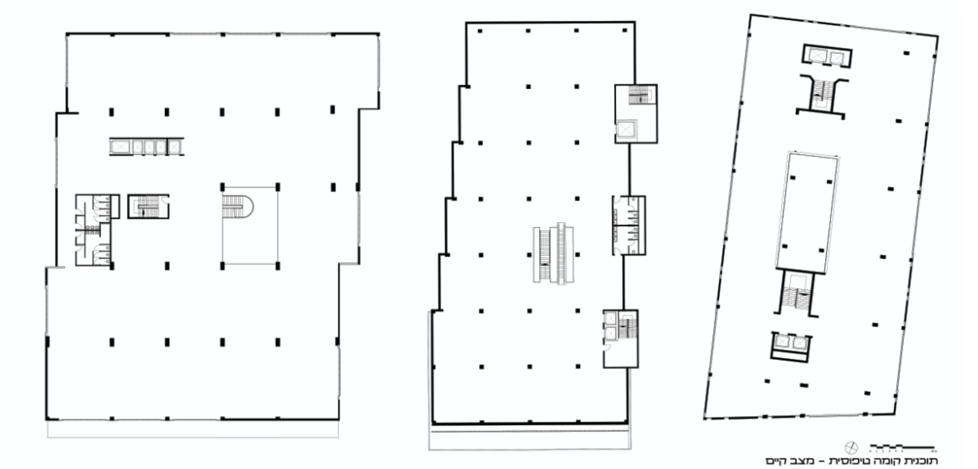
הפרויקט נולד מתוך חוויה אישית של משבר נפשי בסבב המילואים האחרון שלי. חוויה שחשפה בפניי את חשיבותה של בריאות הנפש ואת הצורך להנכיח אותה במרחב הציבורי. מכאן עלתה בי השאלה: כיצד ניתן לתמוך בתחום זה באמצעות הכלים האדריכליים שרכשתי במהלך לימודיי? במהלך המחקר עלו שתי תובנות מרכזיות: 1. בריאות נפשית אינה דבר שניתן "לפתור" באמצעות תרופה או טיפול חד־פעמי, אלא תהליך של למידה כיצד לחיות עם הקושי. 2. אין דרך אחת לריפוי, כל אדם חווה את הקושי וההתמודדות עמו בצורה שונה. מתוך עקרונות אלו גובשה תפיסה של מרחב קהילתי מרפא, המתמקד בריפוי האדם והמקום גם יחד. הפרויקט ממוקם בקצה הדרומי של רחוב הרצל בתל אביב, נקודת מפגש טעונה בין שרידי סכנאת אבו כביר בפארק החורשות ממערב וגבעת הרצל ממזרח, אזור במעבר בין עבר תעשייתי לעתיד קהילתי חדש. בלב הפרויקט ניצב המבנה המרכזי שהינו עיקר הפרויקט. המבנה, ששימש בעבר כבית מרס, עבר הסבה למרכז טיפול רב־תחומי בבריאות הנפש. בקומות העליונות מוקמו חדרי טיפול מגוונים, פרטיים, קבוצתיים וחללי שהייה פתוחים. שתוכננו מתוך מחשבה על אדריכלות שמרפאת: מבטים אל הטבע, הימנעות מזוויות חדות, שימוש באור רך וחלוקה בין מרחבים אינטימיים לשיתופיים. הקומות התחתונות והגג נפתחו לקהל הרחב כפארק עירוני פעיל, המשלב טבע, פנאי וקהילה בכדי לייצר מעטפת חברתית למרכז הטיפול שמעליה. המבנה הצפוני הפך למגורים בזכות רצף קירות המסך שמקיף אותו. פתיחתם יצרה מערכת של מרפסות, ומהן נגזרה חלוקת הדירות. הקומות התחתונות הוקדשו לסדנאות ומלאכה, המשמרות את האופי התעשייתי של המקום ומעניקות לו ממד קהילתי חדש. המבנה הדרומי, הגדול מבין השלושה, נבחר לשמש כמרכז ספורט וקהילה. תכסיתו הרחבה אפשרה לתכנן בקומות התחתונות בריכה חצי־אולימפית, אולמות כנסים ותיאטרון, ואילו קומות הקרקע והגג נועדו למרחבים גמישים לאירועים קהילתיים ומתחמי עבודה מגוונים. שלושת המבנים יחד יוצרים מערכת הוליסטית של ריפוי עירוני. מקום שבו אדריכלות, קהילה ונפש נפגשים ליצירת תקווה חדשה בעיר.
The project was born from a personal experience of a mental health crisis during my last military reserve service. An experience that revealed to me the importance of mental well-being and the need to make it visible within the public realm. From this realization emerged a question: How can architecture contribute to the field of mental health through the tools I have acquired during my studies? During the research phase, two key insights emerged: 1. Mental health cannot be “solved” through medication or a one-time treatment, but is instead a process of learning how to live with one’s difficulty. 2. There is no single path to healing. Each person experiences and copes with emotional challenges in their own way. These insights shaped a vision of a healing community space. One that focuses on the recovery of both people and place. The project is located at the southern end of Herzl Street in Tel Aviv, a charged intersection between the remnants of Sakhnat Abu Kabir within Park HaHorshot to the west and Giv’at Herzl to the east, an area transitioning from an industrial past toward a new communal future. At the heart of the project stands the central building, which forms the core of the design. Once home to Beit Mars, the structure has been transformed into a multidisciplinary mental health center. The upper floors house diverse therapeutic environments: private and group treatment rooms, as well as open relaxation areas, all designed around the idea of architecture as a form of care: framed views toward nature, avoidance of sharp angles, the use of soft natural light, and a balanced rhythm between intimate and communal spaces. The lower floors and roof have been opened to the public as an active urban park, integrating nature, leisure, and community life to create a social framework for the therapy center above. The northern building was converted into residential units, taking advantage of the continuous glass curtain walls that wrap around it. By opening these façades, a series of balconies was created, from which the apartment layouts were derived. The lower floors were dedicated to workshops and craft studios that preserve the site’s industrial heritage while infusing it with new communal vitality. The southern building, the largest of the three, was chosen to serve as a community and sports center. Its wide footprint allowed for the design of a semi-Olympic pool, conference halls, and a theater on the lower levels, while the ground and roof floors were planned as flexible spaces for community events and diverse work areas. Together, the three buildings form a holistic urban system of healing. A place where architecture, community, and the human mind intersect to create new hope within the city.