Nofar Cohen

נופר כהן

نوفار كوهين

كو-ميونيتي

קו-קהילה

co-mmunity

אורבני · התחדשות עירונית · חברתי · מבנה ציבור · מגורים · מרכז · קהילתי · שימור · שימוש חוזר · שימושים מעורבים · שיתוף ציבור · תל אביב-יפו
מנחה: דני לזר
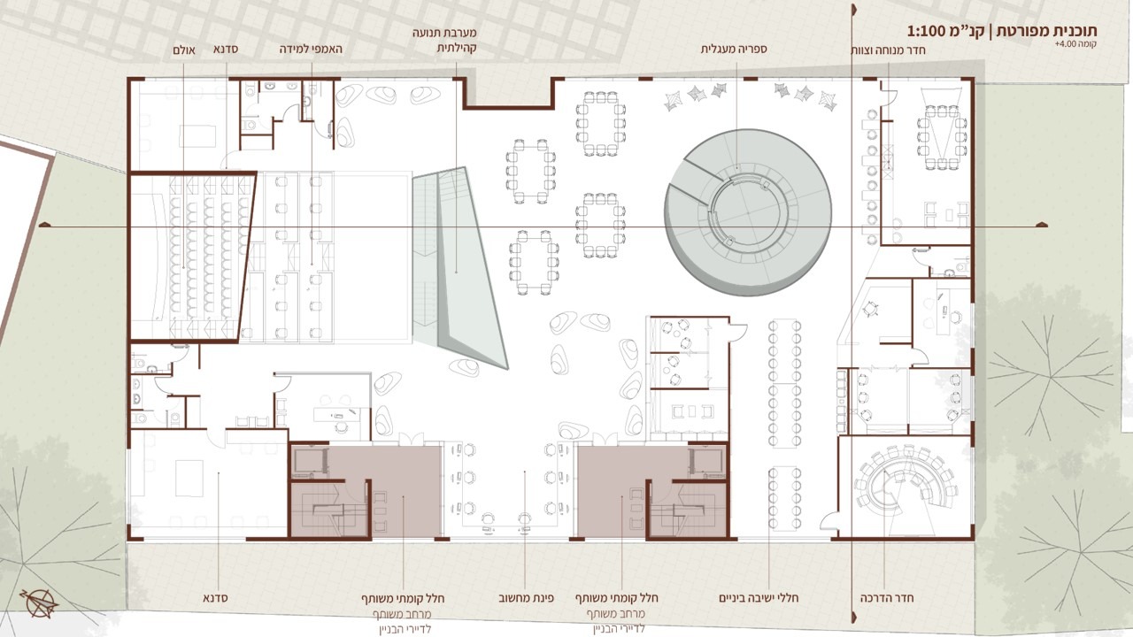
הקשיש איננו רק דמות בהווה – הוא בבואה של כולנו בעתיד הרחוק ולחלקנו ממש 'המחר'. כשאנו מתכננים מרחבים שמכילים, מכבדים ומקדמים את הזקנה, איננו רק דואגים לאחר, אלא יוצרים עתיד מכיל, אנושי וראוי גם לעצמנו. האדריכלות הופכת לכלי של חמלה, הדדיות ותחזית. הפרויקט מבקש לעצב מנגנון מרחבי-חברתי המבוסס על ערכים קהילתיים אותנטיים שמעודדים את דיירי הסביבה לקחת חלק פעיל בתמיכה בקשישים ע"י מערכת חוקים ויצירת מרחבים המתוכננים לייצר תלות חיובית שמחייבת את החברה לספק סיוע אמיתי ומשמעותי. יצירת פתרונות במרחב היום יומי בסביבת המגורים של הגיל השלישי מתוך הבנת האתגרים המורכבים הניצבים בפני אוכלוסייה זו בישראל. הפרויקט מציע גישה בעזרת כלים אדריכליים – תכנוניים הרואים בקשישים חלק בלתי נפרד מהמרקם העירוני והחברתי, בוחן את האפשרות ליצירת מנגנון בין-דורי המשולב בתכנון האדריכלי, כך שהמרחב הבנוי לא רק ישרת פונקציות אלא יאפשר אינטראקציות יומיומיות, פעילות קהילתית שיתופית, ורשתות תמיכה חברתיות כחלק מהחיים עצמם. עקרונות התכנון המושתתים על מערכת חוקים ותקנות, מרחבים וערכים קהילתיים בעצם 'מחייבת' דרך חיים חדשה למשתמש הרוצה לקחת חלק בה כמעין מסדרון המוביל את המשתמש לנוע בו. אתר הפרויקט משמש כמרחב אורבני שאפשר למצוא 'בכל מקום' בעיר, מתהווה לו מערך של מרחבים ציבוריים וסמי פרטיים, לצד מערכות דיור משולבות ומרחבים פתוחים המעצימים את איכות החיים ומקדמים את רווחת המשתמשים. תכנון זה מיועד לקדם חיבור בין דורות, לעודד קשרים יומיומיים ולחזק תחושת שייכות, למנוע בדידות ולתמוך עצמאות הפרט. כך, האדריכלות אינה רק מענה פונקציונלי אלא כלי לבניית קהילה הדדית, מגוונת ומשלובת בתוך מרקם עירוני פתוח ונגיש. המתחם משקף אדריכלות שיש בה אחריות אנושית וחברתית – תכנון שנבנה עבור הקשיש, אך מהווה יתרון לכלל הדיירים ולסביבה כולה.