Lee Galvis

לי גלביס

لي جالفيس

طريق – مكان

דרך - מקום

path - A place

גבול · דרום · זיכרון · חברתי · מבנה ציבור · פריפריה · תחבורה
מנחה: שלי אמריו
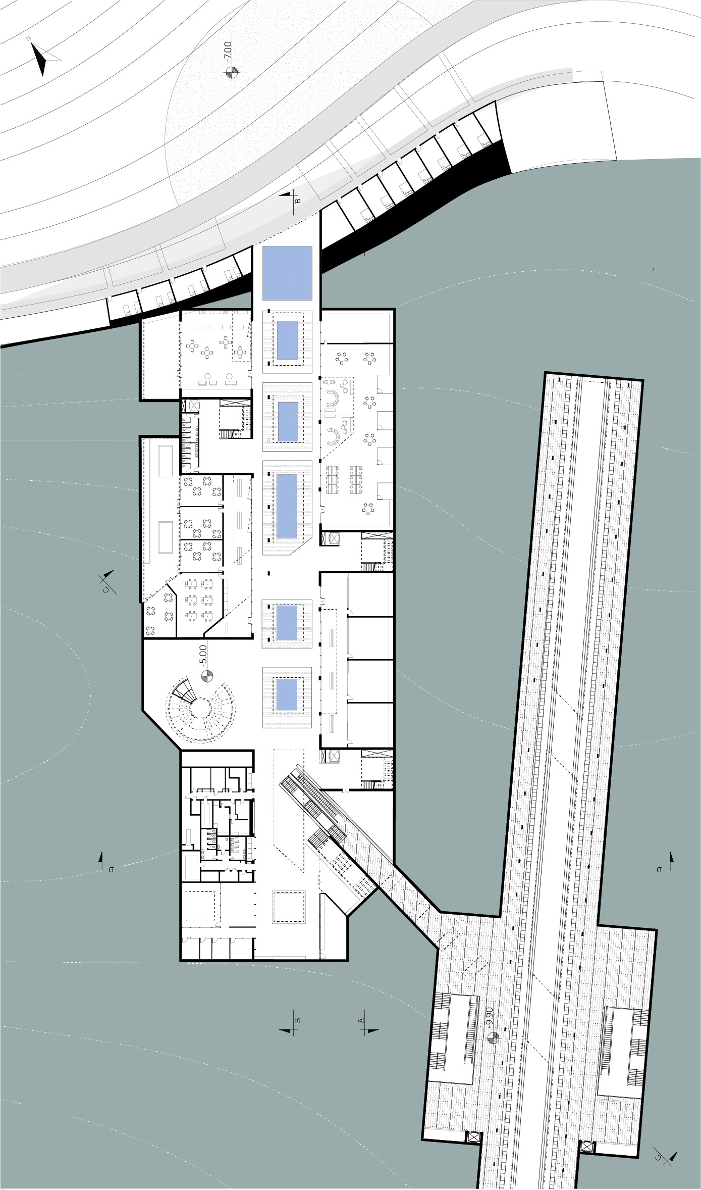
דרך – מקום נולד מתוך דיאלוג פנימי העוסק בזהות הישראלית- מקומית שלי כפי שהתעצבה והשתנתה לאורך השנים. הפרויקט בוחן את שביל ישראל כהטרוטופיה- מרחב נפרד המאפשר ניתוק מהשגרה וכניסה למציאות חלופית המדמיינת ארץ הרמונית ונטולת סתירות. החקר מתמקד בנקודות שבהן השביל מקדם נרטיב שולט יחיד תוך דחיקת נרטיבים אחרים. הבחירה בעיר ערד, הסמוכה לשביל, נובעת מההיסטוריה האדריכלית הייחודית שלה ומהשינויים שעברה: מעיר חלוצית שתוכננה מתוך זיקה לסביבה המקומית, לעיר מרוחקת ומגוונת דמוגרפית, המאכלסת כיום תושבים מכל קצוות החברה הישראלית. הפרויקט מבקש לבחון את הקשר בין שביל ישראל לערי הפריפריה, ולבדוק האם אדריכלות יכולה לייצר דיאלוג ביניהם. בהשראת הנוף המדברי של סביבת ערד- בקנה מידה אורבני ובנייני- הוא מציע הטרוטופיה חדשה השואפת להיטיב הן עם המטיילים והם עם תושבי העיר.
Path – A Place emerges from an internal dialogue exploring my evolving local-Israeli identity. The project examines the Israel National Trail as a heterotopia—a space that allows one to step out of everyday life into an imagined reality of harmony and cohesion. It focuses on moments where the trail reinforces a single dominant narrative while marginalizing others. The city of Arad, located near the trail, was chosen for its unique architectural history and ongoing transformations: from a pioneering city planned in dialogue with its natural surroundings, to a remote, demographically diverse urban center that today hosts residents from across Israeli society. This project investigates the relationship between the Israel National Trail and peripheral cities, questioning whether architecture can create a meaningful dialogue between them. Drawing inspiration from Arad’s desert landscape—both at urban and building scales—it proposes a new heterotopia designed to enrich the experience of both travelers and local residents.
طريق – مكان وُلِدَ من حوار داخلي حول هويتي الإسرائيلية-المحلية كما تشكلت وتغيرت على مر السنوات. يدرس المشروع مسار إسرائيل كـ هتيروتوبيا – مساحة منفصلة تسمح بالانفصال عن الروتين والدخول إلى واقع بديل يتخيل أرضًا متناغمة وخالية من التناقضات. يركز البحث على النقاط التي يعزز فيها المسار السرد المسيطر الوحيد بينما يتم دفع السرديات الأخرى جانبًا. اختيار مدينة عراد القريبة من المسار جاء بسبب تاريخها المعماري الفريد والتغيرات التي مرت بها: من مدينة رائدة صُممت بارتباط بالبيئة المحلية، إلى مدينة نائية ومتنوعة ديموغرافيًا تستضيف اليوم سكانًا من كل أطياف المجتمع الإسرائيلي. يسعى المشروع إلى دراسة العلاقة بين مسار إسرائيل والمدن الطرفية، وفحص ما إذا كان يمكن للعمارة خلق حوار بينهما. مستوحى من المناظر الصحراوية المحيطة بعراد – على المستويين الحضري والمعماري – يقترح المشروع هتيروتوبيا جديدة تهدف إلى تحسين تجربة كل من الزوار وسكان المدينة.